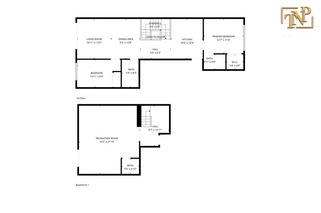
A rare, townhouse-style 1,693-s/q ft duplex that lives big, feels private, and delivers a serious wow factor. Welcome to 499 Van Buren St. This 2 Bed, 2-1/2 bath residence offers the ultimate indoor-outdoor Brooklyn lifestyle with both front and rear private yards, finished in stamped and poured concrete—perfect for entertaining, lounging, or creating your own urban oasis. A finished recreation room and additional storage complete this exceptionally versatile home, all within an intimate boutique condominium.
Set between Stuyvesant Heights and Bushwick, this designer home is drenched in natural light from oversized Pella windows and finished with 7-inch-wide light oak plank flooring, solid-core doors, and energy-efficient Mitsubishi split heating and cooling systems for year-round comfort.
The chef’s kitchen is both striking and functional, featuring custom cabinetry, sleek quartz countertops, and a top-tier appliance package by Bertazzoni and Forte—perfect for casual mornings or elevated dinner parties. Custom-built closets and modern zebra blinds add a polished, move-in-ready feel throughout.
Spa-like designer bathrooms impress with oversized porcelain tile, matte black fixtures, radiant heated floors, and floating toilets. The primary bath boasts a luxurious walk-in shower, while the secondary bath invites relaxation with a deep soaking tub.
Additional highlights include a washer/dryer hookup, private basement storage, and added security cameras at both the front and rear of the residence. The owner has thoughtfully completed several upgrades, making this home truly turnkey.
Just minutes from the J train at Kosciuszko Street and moments from neighborhood favorites like Secret Pour, Fat Doughnut, Wonderville, Cheri’s, Turtles All the Way Down, Passionfruit Coffee, and more — this is Brooklyn living at its most exciting.
Private. Spacious. Stylish.
This is not just a condo — it’s a lifestyle upgrade.
A rare, townhouse-style 1,693-s/q ft duplex that lives big, feels private, and delivers a serious wow factor. Welcome to 499 Van Buren St. This 2 Bed, 2-1/2 bath residence offers the ultimate indoor-outdoor Brooklyn lifestyle with both front and rear private yards, finished in stamped and poured concrete—perfect for entertaining, lounging, or creating your own urban oasis. A finished recreation room and additional storage complete this exceptionally versatile home, all within an intimate boutique condominium.
Set between Stuyvesant Heights and Bushwick, this designer home is drenched in natural light from oversized Pella windows and finished with 7-inch-wide light oak plank flooring, solid-core doors, and energy-efficient Mitsubishi split heating and cooling systems for year-round comfort.
The chef’s kitchen is both striking and functional, featuring custom cabinetry, sleek quartz countertops, and a top-tier appliance package by Bertazzoni and Forte—perfect for casual mornings or elevated dinner parties. Custom-built closets and modern zebra blinds add a polished, move-in-ready feel throughout.
Spa-like designer bathrooms impress with oversized porcelain tile, matte black fixtures, radiant heated floors, and floating toilets. The primary bath boasts a luxurious walk-in shower, while the secondary bath invites relaxation with a deep soaking tub.
Additional highlights include a washer/dryer hookup, private basement storage, and added security cameras at both the front and rear of the residence. The owner has thoughtfully completed several upgrades, making this home truly turnkey.
Just minutes from the J train at Kosciuszko Street and moments from neighborhood favorites like Secret Pour, Fat Doughnut, Wonderville, Cheri’s, Turtles All the Way Down, Passionfruit Coffee, and more — this is Brooklyn living at its most exciting.
Private. Spacious. Stylish.
This is not just a condo — it’s a lifestyle upgrade.
Listing Courtesy of Remax Top Nest Real Estate